
Description
This Yale YS170 multipoint door lock features 3 Hooks & 1 Latch.
The YS170 is a very popular range of multipoint locks made by Yale. We stock the most popular versions which can be adapted to suit an existing requirement if the alteration is small, or we can source the exact product required.
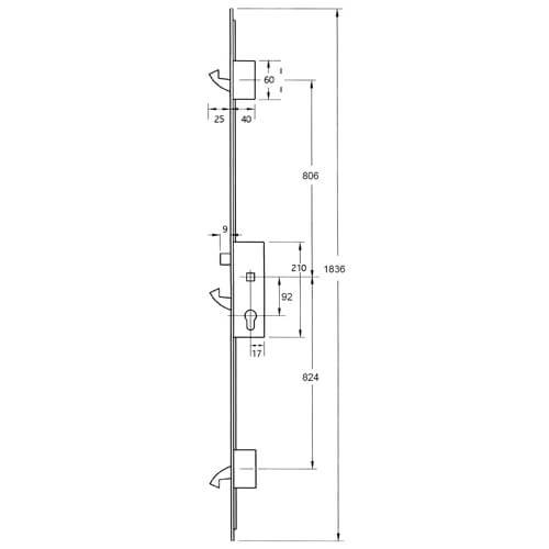
Yale YS170 locks are fairly easy to identify once removed from the door. The locks are always stamped with the distinctive Yale logo. They feature 92mm PZ (centres) with hook and latch bolt configurations. The hook is below the latch, which distinguishes the gearbox from the Yale G2000 model.
Yale YS170 door locks form part of a range of locks owned by Yale which includes the Yale, Millenco, Millenco Mantis and Lockmaster brands. You may also find these locks are closely related in appearance, but unfortunately they are not interchangeable.
Yale YS170 gearboxes are available in 35mm or 45mm backsets with a split spindle mechanism, which can also be used as a lift lever function by using a solid spindle.
YS170 gearboxes measure 217mm high by backset +18mm. The latch measures 28mm high, as does the deadbolt. The measurement 53mm between the bottom of the latch and the top of the hook, which is 28mm high. The hook throws upwards.
Gearboxes are fitted to faceplates with 3 screw holes. The top to middle screw hole measures 110mm and the middle to bottom measures 52mm.
Lockmaster locks can be found with normal hooks, without anti lift pins. Hooks always throw in opposite directions and the hook cases measure 60mm high.
Operation: Split Spindle
To lock the door
1. Lift the handle upwards to engage the locking points.
2. Lock the locking points and main deadbolt (if present) by turning the key.
To unlock the door
1. Unlock the system by turning the key.
2. Push the handle downwards to disengage the locking points and retract the latch.
- Corrosion tested to BS EN 1670:2007 Grade 4 (240hrs. NSST)
We stock a range of associated products for Yale YS170 multipoint door locks, including keeps, spindles, handles and accessories.
You may find this lock used as an UPVC door lock, an aluminium door lock, a timber multipoint door lock or a composite door lock .
Additional information
| Backset | 35mm, 45mm |
|---|---|
| faceplate | Flat 20mm – Square Ends |
| operation | Split Spindle |
| spindle | split-8mm |


There are no reviews yet.